Устройство и принцип работы
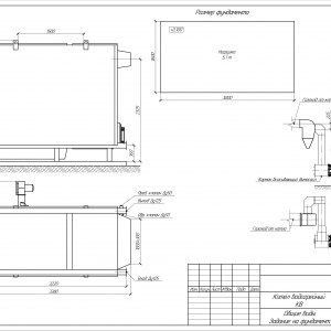
Котел КВм-2.0 на угле с топкой ТЛПХ — это водогрейных механический котел, состоящий из блока топки, системы трубопроводы и теплоизоляционного каркаса. Топливо загружается в бункер, откуда механическим путем попадает в топку. Начинается процесс горения, в результате которого нагревается энергоноситель в трубопроводной системе. Нагретая вода может использоваться потребителями для обеспечения нужд отопления и горячего водоснабжения.
Газы, образовавшиеся в процессе горения, дважды проходят через конвективную часть, полностью отдают тепло и выводятся. Шлак, образовавшийся в результате горения, выводится из системы механическим способом.
Механическая топка ТЛПХ состоит из бункера подачи топлива и колосниковой решетки, приводимой в движение электроприводом. Скорость движения решетки регулирует слой топлива, падающий из бункера.
Для увеличения эффективности сжигания топлива, в топке предусмотрена система воздухоподачи. Эта же система защищает решетку от перегрева и прогаров. Для удобства ремонта в топке имеются дверцы.
Золоотведение и шлакоотведения происходят автоматически, за счет движения и поворота колосниковой решетки.
Особенности и преимущества
- Высокий показатель КПД;
- Развитая конвективная поверхность, способствующая увеличению срока службы оборудования;
- Отсутствие водоподготовки;
- Автоматизация топливоподачи и шлаковыведения;
- Компактный размер.
Размещение и установка
Котел КВм-2.0 на угле с топкой ТЛПХ устанавливается на фундамент и крепится анкерными болтами. Далее к нему монтируется топка и системы автоматизации, если таковые имеются. Важно установить котел ровно, используя уровень, и обеспечить доступ воздуха к системам воздухоподачи.
Собранный котел подключается к системам водоснабжения, на него устанавливается запорная арматура и КИП. Финальной стадией сборки является монтаж газовыводящей системы и установка элементов управления. После проверки сборки котла и его тестового запуска, котел готов к эксплуатации.
Эксплуатация и техническое обслуживание
За счет механической топки и системы шлакоотведения, котел КВм-2.0 на угле с топкой ТЛПХ работает автономно. Все ремонтные работы, включая технические осмотры, должны проводиться квалифицированными специалистами, которые имеют специальное разрешение. При организации технического обслуживания следует учитывать требования «Правил устройства и безопасной эксплуатации паровых и водогрейных котлов».






















