Устройство и принцип работы
Дровяной котел КВм-1,15 — это водогрейных механический котел, состоящий из блока топки, системы трубопроводы и теплоизоляционного каркаса. Топливо загружается в бункер, откуда механическим путем попадает в топку. Начинается процесс горения, в результате которого нагревается энергоноситель в трубопроводной системе. Нагретая вода может использоваться потребителями для обеспечения нужд отопления и горячего водоснабжения.
Газы, образовавшиеся в процессе горения, дважды проходят через конвективную часть, полностью отдают тепло и выводятся. Зола, образовавшийся в результате горения, выводится из системы механическим способом.
Особенности и преимущества
- Высокий показатель КПД;
- Развитая конвективная поверхность, способствующая увеличению срока службы оборудования;
- Отсутствие водоподготовки;
- Автоматизация топливоподачи и золовыведения;
- Системы сжигания топлива, адаптированные специально под ДВО;
- Компактный размер.
Размещение и установка
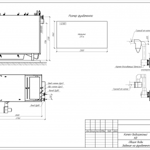
Дровяной котел КВм-1,15 устанавливается на фундамент и крепится анкерными болтами. Далее к нему монтируется топка и системы автоматизации, если таковые имеются. Важно установить котел ровно, используя уровень, и обеспечить доступ воздуха к системам воздухоподачи.
Собранный котел подключается к системам водоснабжения, на него устанавливается запорная арматура и КИП. Финальной стадией сборки является монтаж газовыводящей системы и установка элементов управления. После проверки сборки котла и его тестового запуска, котел готов к эксплуатации.
Эксплуатация и техническое обслуживание
За счет механической топки и системы золоотведения, дровяной котел КВм-1,15 работает автономно. Все ремонтные работы, включая технические осмотры, должны проводиться квалифицированными специалистами, которые имеют специальное разрешение. При организации технического обслуживания следует учитывать требования «Правил устройства и безопасной эксплуатации паровых и водогрейных котлов».



















